Q641F46氣動襯氟法蘭球閥PN16~PN100
Q641F46氣動襯氟法蘭球閥PN16~PN100是為各種強腐蝕性介質管路的自動啟閉控制而設計的,廣泛適用于石油、化工、染化、農藥、制酸制堿等行業,是目前防腐閥門設備最理想的選擇之一。
產品概述
Q641F46氣動襯氟法蘭球閥PN16~PN100是為各種強腐蝕性介質管路的自動啟閉控制而設計的,廣泛適用于石油、化工、染化、農藥、制酸制堿等行業,是目前防腐閥門設備最理想的選擇之一。 Q641F46系列氣動襯氟球閥采用氟塑料襯里,殼體采用熔模精密鑄造,強度高、外觀光潔,與液體接觸部分全部為氟塑料,因此可在-20℃~150℃范圍內長期使用于任意濃度的腐蝕性管路、管線工作。
性能參數
Q641F46氣動襯氟法蘭球閥PN16~PN100主要性能參數
| 閥體形式 | 兩段式鑄造閥體(內襯四氟) |
|---|---|
| 公稱通徑 | DN15~DN400 |
| 公稱壓力 | PN1.6、2.5、4.0 MPa;ANSI 150、300LB ;JIS 10、20、30K |
| 法蘭標準 | GB、JB、HG、JIS、ANSI、DIN |
| 連接形式 | 法蘭式 |
| 壓蓋型式 | 螺栓壓緊式 |
| 適用溫度 | -40~+180℃ |
| 球體形式 | "O"型全襯氟球體 |
| 流量特性 | 近似快開特性 |
| 密封填料 | V型聚四氟乙烯填料、柔性石墨填料等 |
零件及材料
| 閥體 | 鑄鐵、鑄鋼、不銹鋼 |
|---|---|
| 閥芯 | 不銹鋼+聚四氟依稀(F46) |
| 閥座 | 聚四氟依稀(F46) |
| 閥桿 | 2Cr13 |
| 填料 | 柔性石墨、聚四氟依稀 |
| 支架 | 鑄鐵、鑄鋼、不銹鋼 |
| 聯軸器 | 25、35、45 |
性能指標
| 試驗壓力(MPa) | 公稱壓力(MPa) | 壓力級(class) | JIS(K) | |||||||
|---|---|---|---|---|---|---|---|---|---|---|
| 1.6 | 2.5 | 4.0 | 6.4 | 10.0 | 150 | 300 | 600 | 10K | 20K | |
| 強度試驗 | 2.4 | 3.75 | 6.0 | 9.6 | 15.0 | 3.0 | 7.5 | 16.5 | 2.4 | 3.8 |
| 密封試驗 | 1.76 | 2.75 | 4.4 | 7.04 | 11.0 | 2.2 | 5.5 | 12.1 | 1.5 | 2.8 |
| 氣密試驗 | 0.4~0.7MPa | |||||||||
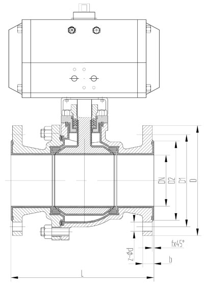
外形結構尺寸
| 公稱通徑 | L | D | D1 | D2 | b | Z-¢d | H | H1 | A | 重量(kg) |
|---|---|---|---|---|---|---|---|---|---|---|
| 15 | 130 | 95 | 65 | 45 | 14 | 4-¢14 | 150 | 54 | 177 | 7 |
| 20 | 130 | 105 | 75 | 55 | 16 | 4-¢14 | 150 | 7.8 | ||
| 25 | 140 | 115 | 85 | 65 | 16 | 4-¢14 | 174 | 11 | ||
| 32 | 165 | 135 | 100 | 78 | 18 | 4-¢18 | 174 | 80 | 216 | 15 |
| 40 | 165 | 145 | 110 | 85 | 18 | 4-¢18 | 208 | 22 | ||
| 50 | 203 | 160 | 125 | 100 | 20 | 4-¢18 | 237 | 31 | ||
| 65 | 222 | 180 | 145 | 120 | 20 | 4-¢18 | 285 | 36 | ||
| 80 | 241 | 195 | 160 | 135 | 22 | 4-¢18 | 302 | 51 | ||
| 100 | 305 | 215 | 180 | 155 | 22 | 8-¢18 | 324 | 125 | 290 | 84 |
| 125 | 356 | 145 | 210 | 185 | 24 | 8-¢18 | 450 | 110 | ||
| 150 | 394 | 280 | 240 | 210 | 24 | 8-¢23 | 480 | 150 | ||
| 200 | 457 | 335 | 295 | 265 | 26 | 8-¢23 | 526 | 230 |
外形結構尺寸圖

維護
氣動球閥在安裝前的準備工作:
1、保證氣動管路球閥安裝位置管線在同軸位置上,管線上兩片法蘭應保持平行,確認管線能夠承受氣動管路球閥自身重量,如果發現管線不能承受氣動管路球閥重量,則在安裝前為管線配備相應的支撐。
2、確認管線內是否有雜質、焊渣等,必須要把管線內吹掃干凈。
3、核對氣動管路球閥銘牌,并對氣動管路球閥進行全開全閉數次操作,確認閥門能夠正常工作,再全面檢查一次閥門的各個細節,保證閥門完好無損。
4、除去閥門兩端的保護蓋,檢查閥體內是否干凈,清洗閥體內腔,由于氣動管路球閥的密封面是球形狀,即使微小的雜物也可能造成密封面的損傷。
氣動管路球閥的安裝:
1、氣動管路球閥的任何一段都可安裝在上游端,手柄氣動管路球閥可以安裝在管線的任何位置,如果配置執行機構(如齒輪箱、電-氣動執行器)的氣動管路球閥,則必須垂直安裝,閥門進出口處在水平位置上。
2、氣動管路球閥法蘭與管線法蘭間按管路設計要求裝上密封墊。
3、法蘭上的螺栓需對稱、逐次、均勻擰緊。
4、如果氣動管路球閥采取氣動、電動等執行器時,按說明書完成氣源、電源的安裝。
氣動管路球閥安裝后的檢查:
1、安裝完畢后,啟動氣動管路球閥開、關數次,應該動作靈活,受力均勻,氣動管路球閥工作正常。
2、根據管道壓力設計要求,通壓后檢測氣動管路球閥與管道法蘭結合面的密封性能。
|
||||||||||||||||||||||||
![]() |
||||||||||||||||||||||||
| ||||||||||||||||||||||||










