產品概述
Q941F電動襯氟法蘭球閥PN10~PN16由電動執行機構和O型襯氟球閥組成。電動襯氟球閥閥體內腔及球芯均采用高壓注塑工藝襯有耐腐蝕、耐老化的聚全氟乙炳烯,故具有可靠的耐腐蝕性和密封性。主要用于對生產過程中酸堿等強腐蝕介質的調節或切斷。
零件材料
Q941F電動襯氟法蘭球閥PN10~PN16主要零件材料| 零件名稱 | 材料 |
|---|
| 閥體、閥蓋 | WCB+F46 | 304(CF8)+F46 | 316(CF8M)+F46 | 316L(CF3M)+F46 |
| 球體 | 2Cr13+氮化處理+46 | 304+46 | 316+46 | 316L+46 |
| 閥桿 | 2Cr13+46 | 304+46 | 316+46 | 316L+46 |
| 閥座密封圈 | PTFE、碳素纖維+PTFE |
| 密封填料 | V型聚四氟乙烯填料 |
技術參數
Q941F電動襯氟法蘭球閥PN10~PN16主要技術參數| 公稱通徑(mm) | 15 | 20 | 25 | 32 | 40 | 50 | 65 | 80 | 100 | 125 | 150 | 200 | 250 | 300 |
|---|
| 公稱壓力(MPa) | PN1.0、1.6MPa |
| 泄漏量 | 軟密封:零泄漏 |
| 閥體形式 | 兩段式閥體(浮動球體) | 兩段式閥體(固定球體) |
| 閥芯形式 | "O"型球形閥芯 |
| 密封填料 | 聚四氟乙烯(PTFE) |
| 連接形式 | 法蘭 |
| 可調范圍 | DN15-65 | DN80-300 |
| 250:1 | 350:1 |
| 基本誤差 | ±1% |
| 死區 | ≤1% |
| 回差 | ≤1% |
| 適用溫度 | 密封面 |
| PTFE≤180℃ |
| 配置執行機構 | 可配PSQ、HQ、361RS、HR等系列角行程電動執行機構 |
| 控制方式 | 開關到位燈(開關兩位控制)、智能調節(4~20mA模擬量信號控制) |
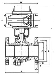
外形結構尺寸
Q941F電動襯氟法蘭球閥PN10~PN16外形結構尺寸| 公稱通徑 | 標準值 | 參考值 |
|---|
| DN(mm) | NPS(inch) | L | D | K | D1 | f | b | z-Φd | W | H |
|---|
| 15 | 1/2 | 140/130 | 95 | 65 | 45 | 2 | 14 | 4-Φ14 | 231 | 211 |
| 20 | 3/4 | 140/130 | 105 | 75 | 55 | 2 | 16 | 4-Φ14 | 231 | 211 |
| 25 | 1 | 150/140 | 115 | 85 | 65 | 2 | 16 | 4-Φ14 | 231 | 214 |
| 32 | 11/4 | 165 | 135 | 100 | 78 | 2 | 18 | 4-Φ18 | 231 | 221 |
| 40 | 11/2 | 180/165 | 145 | 110 | 85 | 3 | 18 | 4-Φ18 | 231 | 227 |
| 50 | 2 | 200/203 | 160 | 125 | 100 | 3 | 20 | 4-Φ18 | 231 | 247 |
| 65 | 21/2 | 220/222 | 180 | 145 | 120 | 3 | 20 | 4-Φ18 | 261 | 268 |
| 80 | 3 | 250/241 | 195 | 160 | 135 | 3 | 22 | 4-Φ18 | 261 | 331 |
| 100 | 4 | 280/305 | 215 | 180 | 155 | 3 | 24 | 4-Φ18 | 285 | 361 |
| 125 | 5 | 320/356 | 245 | 210 | 185 | 3 | 26 | 4-Φ18 | 285 | 390 |
| 150 | 6 | 360/394 | 280 | 240 | 210 | 3 | 28 | 8-Φ23 | 325 | 408 |
| 200 | 8 | 457 | 335 | 295 | 265 | 3 | 30 | 8-Φ23 | 325 | 478 |
尺寸圖

安裝注意事項
1.安裝施工必須小心,切忌撞擊閥門。
2.安裝前,應將球閥作一檢查,核對規格型號,鑒定有無損壞,尤其對于閥桿。還要轉動幾下,看是否歪斜,因為運輸過程中,最易撞歪閥桿。還要清除閥內的雜物。
3.球閥起吊時,繩子不要系在手輪或閥桿上,以免損壞這些部件,應該系在閥體上。
4.對于球閥所連接的管路,一定要清掃干凈。可用壓縮空氣吹去氧化鐵屑、泥砂、焊渣和其他雜物。這些雜物,不但容易擦傷球閥的密封面,其中大顆粒雜物(如焊渣),還能堵死小閥門,使其失效。
5.安裝時要留有閥柄旋轉的位置。6.球閥不能用作節流。 7.帶傳動機構的球閥應直立安裝。